Quarry's Monday Mood Board

Screen Shot 2017-08-28 at 11.12.39 AM.png

The Lavender's Lounge

This Monday, we are going to need you to put on your dreaming caps for us:

Screen Shot 2017-08-28 at 11.12.28 AM.png
FullSizeRender-59.jpg

In the above photos, you can see this room was once the dining room. We are really excited to be turning it into our lounge...the den...the whiskey room...whatever you want to call it, this is where the comfortable couches, the leather smelling candles, and all the chit chats will happen. 

There is one thing you need to know. This room will be the lounge mainly because our dream is to have a room where Derek can sit and get out of his chair but still be able to talk with me in the kitchen. As you can imagine, we now eat a majority of our meals on the couch because it is just a nice break for Derek and his back. Thankfully, we are able to turn the old dining room into that type of room!

There are two major changes you will see happening in this room. Please consult the above drawing for better direction. 

  1. We will be creating a half wall in the kitchen to better connect with the Lounge. This wall will also be given a new bar top. with bar stools.
  2. We are actually adding a hallway through the lounge and into the current laundry room. This hall will connect the master to the rest of the house and keep everyone from having to trail through the kitchen.
FullSizeRender-62.jpg
FullSizeRender-61.jpg
FullSizeRender-60.jpg

For the style, I've decided to paint the walls Sherwin Williams- Iron Ore. This is a very dark gray, which will bring in the cozy factor while helping disguise the TV on the wall. We will also be getting a few new pieces of furniture, a power reclining couch, and of course Barkus will be there as a little baby bear rug. 

 

lavenders_lounge-moodboard.jpg

So there you have it! Do you have any dark painted rooms? How has it held up?  It is a little outside of my comfort zone but I am feeling gutsy! 

With Love,

The Lavenders

Quarry's Monday Mood Board

Screen Shot 2017-08-21 at 10.15.55 AM.png

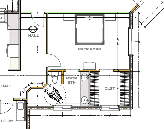
See that garage? Soon it will contain our master bathroom! You ready for this?

The Master Bathroom

FullSizeR-6.jpg
FullSizeRender-56.jpg

Having an accessible bathroom is one of the most important features of our home. It really is the only reason we haven't already moved it to Quarry. Derek uses a waterproof chair most commonly called a shower chair. He will transfer onto it each morning to get ready for the day and then gets dressed on the bed.

The layout of our bathroom was designed with this in mind. The shower will not have any glass doors or even a curtain. It will be deep enough for Derek to easily pull forward, shower, and then back out. There is a linear drain at the front that will catch most *fingers crossed* of the water. 

Our goal is to keep chair transfers to a minimum because transferring back and forth from one location to another can cause skin breakdown, shoulder wear, and honestly is just a little scary. Would you want to move your body from one rolling chair to another with only the use of your arms?! With a shower chair, he only has to transfer himself 3 times each morning.

FullSizeRender-57.jpg
FullSizeRender-58.jpg

Below you will see a sample of the pieces we have chosen for the bathroom. I will not point fingers at who does not care for one of these items and has sent the other person on a wild goose chase to appease the others picky self....but besides one item, the others will be showing up in the bathroom. 

master_bedroom-moodboard.jpg

When picking the pieces, we were wanting to stay with the mid century vibe of the house but also bring in a touch of modern. O you know. The midcentury modern vibe. 

We are very excited for this space. Derek reminded me that Bunker was actually a 1 car garage and we lived in it for two years. This is a two car garage just dedicated to our master suite! 

What is your favorite feature in your master bathroom? 

With Love,

The Lavenders 

Quarry's Monday Mood Board

Hello friends! 

We have a little announcement:

Every Monday (until we run out of rooms to show you), we will be showcasing a room in the Quarry and give you our design ideas. Slowly but surely, this place is going to come to life with our plans and we want you to be right here for all the fun stuff.

The first room up to bat:

The Dining Room

As seen above, the previous owner used this room as his den. We have decided to open up the space and utilize the large (and character filled) room as our dining room. 

Here is the picture.

We will be knocking down the wall between then kitchen and also the long wall separate this room from the family room.

On the other side of the wall is the current fireplace. We will be exposing that fireplace so the backside will be in the dining room. 

See the painting? Imagine a long buffet table there connecting the dining room with the kitchen. 

Eventually, we plan on purchasing a large, wood dining room table to fill up the room. Running along the table will be dark chairs. Throw in a great light fixture and probably 17 house plants, you have a dining room fit for lots of dinner guests, emotional board games, and late night talks.  

For lighting, we will be moving a leftover light fixture from the home into the room. We will also have several canned lights throughout the house.

This paneling? We will be repurposing it for...(drum roll please)...THE FIREPLACE! I bet you are secretly cringing but we think it is going to look pretty great with the design we have in mind. 

FullSizeRender-42.jpg

And since you made it all the way to the end of the blog, you get in on a special little secret.

See that wood floor sample? That one closest to you on your right? No, not the one with the red sticker...the one with multiple wood colors...

That, my friend, is our future floor. 

We are about done with the design process, so I must ask, any must have's in your home that we should consider?

With Love,

The Lavenders

 

The Quarry Layout

FullSizeRender-41.jpg

The Quarry is about to get a facelift.

We have been working along side our contractors for a few weeks and are happy to report our plans are really coming together. We wanted to share with you the layout of the home and our ideas. 

Quick refresher. The Quarry is a single story, 2 bedroom 2 bathroom home. We are opening up the living spaces, exposing the current fireplace, adding on an accessible master bedroom/bathroom, and then adding a 2 car garage.

The finished layout: 

  

 

 

Our overall goal is to really open up those living spaces (knocking out 4 current walls), add a key feature (the fireplace), and create a very usable home where Derek has complete access (taking out all the carpet and creating a small ramp). 

The current garage will be turned into our master bedroom, so we will be adding on an accessible 2 car garage. Below are the plans for the garage addition, as well as how it will look from the outside: 

The final portion of the home is the addition of the master bedroom/bathroom. We are really looking forward to designing this space not only for accessibility reasons, but because it is going to be a blast to pick out all the details! 

Our next big meeting will include choosing a lot of our final features (tile, floors, paint colors, etc.). Once those are chosen, our contractors will be ready to get started! They are hoping to break ground and demo the middle of August.

Due to the new puppy and all the demo work, Derek and I have decided to stay at our apartment and go month to month. The team hopes to have us in by Christmas! 

Thanks for being excited for us!

With Love,

The Lavenders

How To Live Like a Local

Well, you are hearing it first. This blog is sponsored by these guys.  Can you believe it? We got a  sponsor! Anyway...onto the interesting stuff:

So, I don't think it is much of a secret that we live and play in Indianapolis. We moved here for school and stayed for work.  We know a lot of you live near by, so when ForRent.com asked us to highlight what a local loves to do around Indy, we figured we would jump at the opportunity to have a sponsored blog (I know. I'm probably way too excited about this) and fill you in on what we do for fun around here! 


Fat Dan'sWarning: This place literally doesn't have a vegetable on the menu (unless you consider the lettuce and tomato on your burger). But boy, it is a fun little place to stop, sit out on the patio, and get yourself some Dirty Tots. You heard me right. Dirty Tots. Tater tots smothered in pulled pork, cheese, and hot sauce. 

FullSizeRender-35.jpg

 

Cerulean- O ya. It is that gourmet, tasty, beautiful restaurant just smack between the Colt's and Pacers's stadium. It also happens to be family owned and operated...so if you are in Indianapolis celebrating some type of anything, check the out. And whatever you do, don't skip over the dessert menu. 

 

Indiana Pacers Bike Share- Indianapolis has a great little bike program where you can rent these beautiful guys and hit the town. As you can imagine, this is a much quicker mode of transportation, doesn't require you to parallel park, and costs less than your Starbucks latte. Ps. Please do my heart a favor and try out the MANY local coffee shops and skip Starbucks. Seriously, we have some good ones (Coat Check Coffee, Pearings, Kaffeine, Hubbards, etc)

 

Massachusetts Avenue- You really can't go wrong with wandering down this street which is right downtown. Lots of restaurants, coffee shops, and a random parrot in a cage outside of the shoe store. Seriously. It whistles at people as they walk by...what more could you want out of your Indianapolis trip?

We know apartment hunting can be hard, frustrating, and also a bit scary when you don't know the area you actually shopping in. You make life way easier on yourself, check out this one stop shop spot for apartments.

To stalk other cities and learn the local area, check out the local guide here: Live Like A Local Guide

 

With Love,

The Lavenders 

The Quarry's Big Reveal

"Little by little, the bird makes its nest."
- French Proverb

After months of searching, we fell in love with a modest, two bedroom, midcentury ranch. Our new home sits on an acre property snuggled among a great little neighborhood. We are close enough to the city where driving downtown each day for work doesn't seem like an exhausting task but far enough away that sirens and rap music aren't waking us up each night.

After weeks of discussion and name tosses, our friend Kailey came up with The Quarry. Limestone. Quarry. Get it?  Yup. So there it is. The Quarry. Once the name was chosen, we embarked on the journey of finding a contractor who would take on our project. We interviewed 5 different crews who toured our home, listened to our ideas, and made a pitch for our business.

In the end, we decided to go with Corinthian Fine Homes. The team has a great reputation and we appreciated how down to earth they were. Also, the designer on the project was once an occupational therapist (Derek worked with a lot of O.T during rehab) and she felt confident they could make our home accessible and beautiful. This is our dream folks. To have a house that is cozy and stylish but with every accommodation necessary for someone in a wheelchair. 

In the weeks to come, we will be meeting with Corinthian to work out every little detail of Quarrie's makeover. From floors to light fixtures, we will be making some changes that will make the house work better for our new lifestyle. So, on most evenings you will find us browsing Houzz (Pinterest for Houses), discussing fireplace mantels, and me explaining to Derek by obsession with white paint.

Hold onto your hats friends, it's about to get technical (because Derek is sitting here explaining scissor trusses to me) and hopefully really fun. 

Ps. If you thought that picture up top was a photo, it isn't. It's a video, homemade by us! 

With Love,

The Lavenders

Farewell to Bunker

Home, let me come home
Home is wherever I'm with you

-Edward Sharpe and the Magnetic Zeros

Isn't it strange how we divide our lives into "before and afters". Life before marriage, before kids, before college, before a job, before etc. Well, this accident has ended up on the "before" list as well. We catch ourselves clarify stories with "before the accident, we did yada yada". Bunker happens to be one of those before.  We realize our slight obsession with Bunker (our garage turned into a tiny home) may come across strange to some but please know, this place is so much more to us than just a house. It has somehow embodied our life "before the accident".

We had the tough job of saying goodbye to Bunker last week as we handed over the keys to a complete stranger.  When we sat on the porch and said our goodbyes, the memories just flooded back. When we returned to our apartment, we thought a "Goodbye to Bunker" blog may be in order. Not only to give all our new friends a peak at the place we keep talking about, but also a final farewell before we fully jump into the Quarry renovation. 

So if you know Bunker, you can just skip the next part and go right to the slide show. We all know slideshows are the best anyway.

The Story:

In January 2014, Derek and I purchased a property through an online site called Hubzu. The acre of land included a tired home built in the 1940's (Longshot) and an unattached garage at the top of the hill (Bunker). After gutting the home, we switched gears to focus on Bunker. Our goal was to renovate the garage into a livable space where we could live while  finishing the house. 

We did the work ourselves with some serious help from our friends and family. We moved into Bunker October 2014 and lived there until the morning of the accident. Bunker was known for her Memorial Day parties, her capability of hosting 15 people (and a baby) on a freezing Halloween night, sleeping 9 people snuggled in her 420 square ft space, her cricket infestation, her concrete floors, her ability to make you feel like you were living in the country when you actually lived right across the river to a Kroger, and her never ending list of little projects. 

I remember sitting in the hospital the night of the accident and texting my brother-in-law in a panic. For some reason, my biggest concern was where we were going to live. What were we going to do with Bunker? How could we make this place accessible so life could just continue on as before? Now almost a year later, I find it fascinating that Bunker was one of my first gut concerns. My good friend pointed out that we are just "home" people. We aren't necessarily "home bodies" but we love having a place where people are welcome, where we are comfortable, and where our imaginations can run free. That was Bunker for us. 

Fast forward 11 months. We rented out Bunker for 6 of those months and then we decided to put it up for sale. We knew the property wasn't ideal for a wheelchair and although we wanted so badly to stay, life had moved on and we needed to catch up. Every time we went back to Bunker, it felt like a punch in the stomach. All I could think about was the slideshow you are about to watch. I saw Derek tinkering in the house, climbing up into the loft, the endless games of Yahtzee, sitting on our porch talking to our neighbors, walks around our hilly neighborhood, the bonfire, games, and so many evenings of hearing him roll in on his motorcycle.

We know we will create new memories, a new life, a new "normal", just bear with us as we work on getting there. I promise our other blogs won't sound quite as wimpy. We have recently purchased a new home (The Quarry) and plan on starting renovations within the next couple months. We are really looking forward to create a new home for ourselves and for you guys to join along!

 

So, farewell Bunker. You were a great first home...

The Quarry

As many of you know, our journey to find a home started back in July. Even as Derek was still in the ICU, I was running around touring homes and hoping to find a great accessible place for us. Looking back, I am pretty sure that was some type of coping mechanism. I wanted to feel some sense of control, so finding our next home seemed like a great way to get our lives to stop spinning. Plus, who doesn't like dragging their friends around to showings, have that friend use their Go Pro, and then ask the friend to download the video onto a flash drive so a very sick Derek can still feel like he is part of the house hunt. Big shout out to Ben Summers for being that friend. 

Well, fast forward 8 months and we found it! Honestly, I remember the moment I saw this house. For months, Derek and I's texting thread was nothing more than links to homes we found intriguing. When he sent me this house, he said, "Too bad it is only 2 bedrooms and not in the area we were hoping." We both loved the layout and the way to owner had kept so much of the original character all while making it his own. I looked at it, commented that it was a cool house, and then went back to my NE corner of the city hunt. 

Two days later, we were meeting with our realtor to tour another house and she asked us if there were any others we would want to see. Derek threw this one on the list and I literally rolled my eyes. In my opinion, not enough bedrooms and not in the location of where we wanted to be. After visiting some homes, we made this one our last stop. I am pretty sure I was sold by the time I walked through the front door. 

So friends, welcome to The Quarry. We have some renovations in mind and can't wait to get started. We are planning on staying in our apartment until The Quarry is ready to rock and roll.

Renovation items:

  • Turning the current garage into an accessible master bedroom/ bathroom
  • Knocking down the wall between the family room and den
  • Opening up the wall between the dining room and kitchen
  • Tearing up carpet and adding some type of hard flooring 
  • Adding on an accessible garage
  • Enjoying having someone else do the work 

We are in the process of getting quotes for the work that needs to be done. Obviously, dream Lavenders and budget Lavenders may not see eye to eye on this. We are hoping we can complete our renovation while staying within budget and still getting the look we are going for. 

The Quarry

  • 2 bedroom
  • 2 bathroom
  • 2,100 square foot
  • Ranch
  • Limestone
  • 1 acre
  • Built- 1954
Family Room

Family Room

Kitchen- Original Cabinets

Kitchen- Original Cabinets

Guest Bath- clearly original 

Guest Bath- clearly original 

Current Master- will become main guest bedroom 

Current Master- will become main guest bedroom 

Our beautiful backyard

Our beautiful backyard

Of course, a photo of the outside is coming. I was just really hoping to get one of those cliche' WE BOUGHT A HOUSE photos. So, hang tight. I have to talk Derek into it first. 

With Love,

The Lavenders